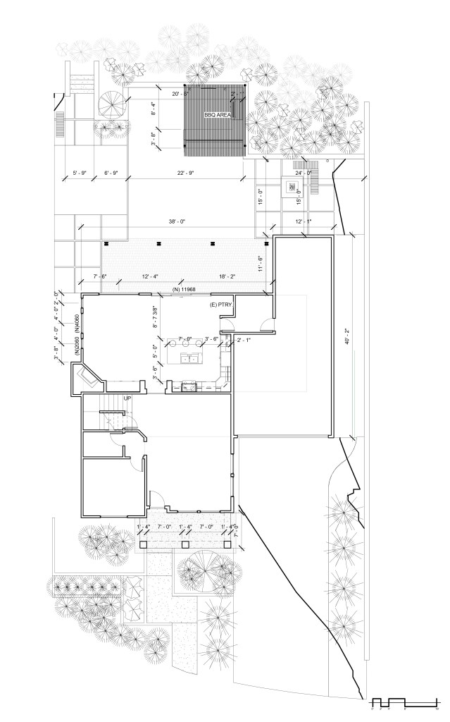
Santa Anita Remodel ProjectConcept ProjectApril 5, 2016February 19, 2021 Landscape, Outdoor Living and Kitchen RemodelChula Vista, CaProject Size: 1,540-SF2016 Kitchen Remodel Related Published by Sergio A. Peralta View all posts by Sergio A. Peralta