Multifamily Project
Tijuana, Baja California, Mexico
Project Size: 43,948-SF
2016
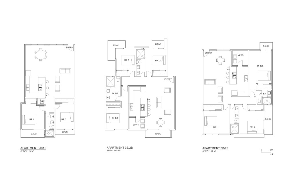
This project is a series of three projects that were presented to the client as a proposal for the possible development of an oceanview property in Playas de Tijuana, Baja California, Mexico. The client was presented with three options, a mix-use option, a low-rise residential option, and a commercial option. The project presented here is a 43, 948 square foot four-level multifamily project with above-grade parking and a rooftop. The project is composed of two attached towers each designed with three units per level. The site is located in a very transitted area so privacy without sacrificing exterior light was a priority.

